Design
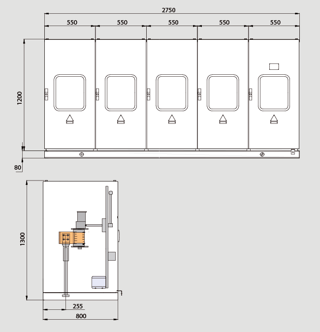
Structurally Switchgear of Distribution and Sectioning is made as one-side services metal cabinet (casing manufactured by RITTAL, Germany), divided into five compartments.
Each compartment is equipped with one disconnector, type EDT 4000, with visible double-break. Each compartment has an individual door, locked with a key.
The door is equipped with an overview window for disconnector contacts position observation. Disconnectors are installed in the rear end of compartment; manual drive is in the front end. Front and rear parts of compartment are divided with a panel with overview window. Each disconnector drive axis is controlled from its reducer.
Technical characteristics
| Name of parameter | Value | |
| Power circuit rated voltage | V | 750, 825 |
| Power circuit rated current (DC) | A | 4000 |
| Dynamic stability current | kА | 100 |
| Electric drive control voltage (DC) | V | 220 |
| Lighting circuit voltage (AC, 50 Hz) | V | 220/12 |
| Protection class (except places of bus bars going out to contact rail) | IP54 | |
| Servicing | One-side | |
| Mechanical stability, min | cycles | 20000 |
