Switchgear for Cable Connection


Switchgears for Cable Connection are applied at DC metro traction networks as cabinets for cables connection in tunnel and depot.

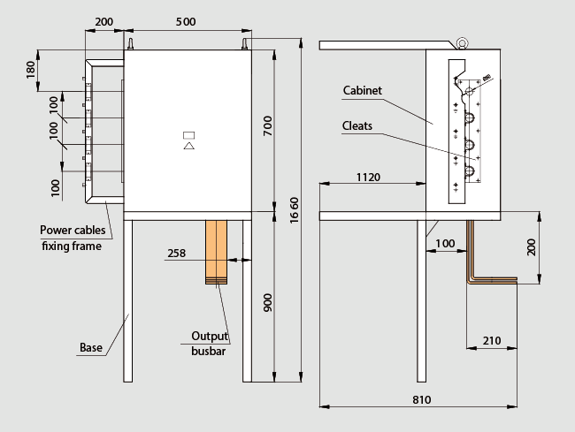
Design

Structurally Switchgear for Cable Connection consists of one-side serviced cabinet and foundation. Form factors manufactured by RITTAL are used. The cabinet is equipped with power bus bars to which cables are connected. 

The bus bars go through the bottom for connection to contact rail. Frames for cables mechanical fixing are installed on the side of the cabinet. The foundation is provided for cabinet installation on proper location. 

The cabinets are manufactured both for outdoor installation (in depot) and for indoor installation (in tunnel).



Technical characteristics


Name of parameter   Value
Operating voltage V 750, 825
Rated operating current  A 4000
Testing voltage kV 24
Number of connected cables section 625 mm2   pcs. 4
Protection class    IP33
Modification   Left
Right
Overall dimensions, max.  500 х 1660 х 810
Weight, max  kg 70


Overall dimensions 



Single-line diagram