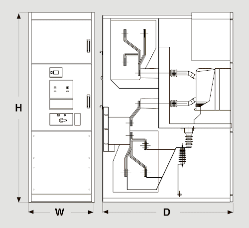
Switchgear NEX. Overall dimensions

 Incoming and Feeder Cubicle

W = 
 650 mm, 
 800 mm, 
 900 mm

H = 
 2320 mm,

D = 
1595 mm, 
1780 mm, 
1935 - 2195 mm 
 
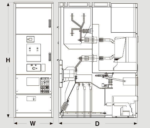
Bus Coupler Cubicle

W = 
 650 mm, 
 800 mm,
 900 mm

H = 
 2320 mm,

D = 
1595 mm, 
1780 mm 
 
Busbar Voltage Transformer Cubicle

 W = 
 650 mm, 
 800 mm

H = 
 2320 mm,

D = 
1595 mm, 
1780 mm 

 Auxiliaries Transformer Cubicle

 W =  
 800 mm

H = 
 2320 mm,

D = 
1595 mm, 
1780 mm